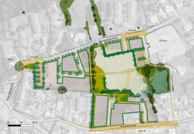
Maître d’ouvrage : Commune de Tiffauges (85), Vendée Expension (SPL) Mission : Études préalables/programmation Etudes : 2024 Equipe d’études : Agence Gilles GAROS, paysagiste-concepteur et urbaniste OPQU (Mandataire) Atelier Sarah Forny, architecture et urbanisme Territoires partagés, BET VRD PAYSAGE Préserver le cône de vue de vue sur l’église et prolonger les structures paysagères : haies bocagères, , murs de pierre (soutènement), mare, prairie (zone humide). Topographie : adaptation du projet au relief (équilibre déblai-remblai). DÉPLACEMENTS Continuité du réseau de liaisons douces entre le bourg et le site, limiter la place de la voiture. Organisation du stationnement en poches réparties sur le site (habitants, cimetière). Accès et desserte du quartier par les rues sécurisées. FORMES URBAINES Prolongement de la densité urbaine du bourg à l’ouest du quartier, en intégrant le parking existant. Typologie bâtie en harmonie avec celle du bourg et en accord avec le règlement du SPR. Orientation et compacité du bâti limitant les consommations énergétiques ENVIRONNEMENT Valorisation de la zone humide (espace de découverte) Mode d’entretien en gestion différenciée (prairie, tonte pour passage piéton nordsud) Continuité de la trame verte et bleue nord-sud Limitation des surfaces imperméabilisées (loi Climat et Résilience)
Maître d’ouvrage : Commune de Tiffauges (85), Vendée Expension (SPL) Mission : Études préalables/programmation Etudes : 2024 Equipe d’études : Agence Gilles GAROS, paysagiste-concepteur et urbaniste OPQU (Mandataire) Atelier Sarah Forny, architecture et urbanisme Territoires partagés, BET VRD PAYSAGE Préserver le cône de vue de vue sur l’église et prolonger les structures paysagères : haies bocagères, , murs de pierre (soutènement), mare, prairie (zone humide). Topographie : adaptation du projet au relief (équilibre déblai-remblai). DÉPLACEMENTS Continuité du réseau de liaisons douces entre le bourg et le site, limiter la place de la voiture. Organisation du stationnement en poches réparties sur le site (habitants, cimetière). Accès et desserte du quartier par les rues sécurisées. FORMES URBAINES Prolongement de la densité urbaine du bourg à l’ouest du quartier, en intégrant le parking existant. Typologie bâtie en harmonie avec celle du bourg et en accord avec le règlement du SPR. Orientation et compacité du bâti limitant les consommations énergétiques ENVIRONNEMENT Valorisation de la zone humide (espace de découverte) Mode d’entretien en gestion différenciée (prairie, tonte pour passage piéton nordsud) Continuité de la trame verte et bleue nord-sud Limitation des surfaces imperméabilisées (loi Climat et Résilience)

TIFFAUGES

Aménagement du quartier des Prairies

TIFFAUGES

Aménagement du quartier des Prairies